杭州东站、杭州西站都已实施免安检换乘,记者今天最新获悉, 杭州城站也即将实施这一能提升旅客换乘体验的措施。 《铁路杭州站地铁免安检改造方案(意见征求稿)》已经发布,城站广场管委会组织相关单位就铁路杭州站出站旅客至地铁免检改造工程向社会公开征求意见。



展开全文
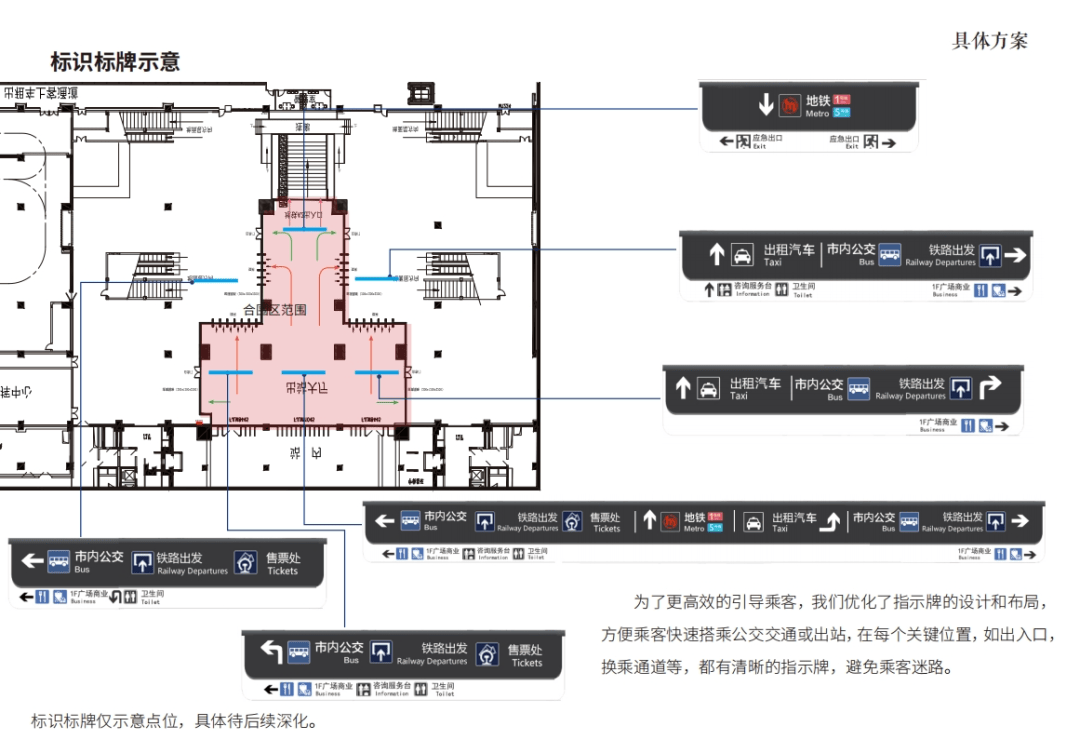
这份意见征求稿提出,拟在城站到达层设置铁路到达向地铁站单向免检换乘区域,合围区域将 直接连通铁路出站闸机与城站地铁A2出入口, 铁路到达旅客将实现免检换乘地铁,在合围区域设置闸机出口,方便乘坐其他交通工具的旅客顺利出站,同时应急门通道,方便特殊情况下使用。


拟在合围区域共设置四组单向闸机出口,20 个闸机通道(考虑到城站出站多为带大包行李人员,闸机宽度调整为1m,其中设置两个无障碍闸机通道,宽度1.2m。)设置四个应急门(宽度1.8m)方便特殊情况进出需要。当发生紧急状况时,所有人行闸机自动打开,保证人员快速疏散。且考虑到与地铁运行时间的不同,可以晚上地铁停运的时候,打开人行闸机,方便人员的走动。地铁第二天正式运营前需对免检区域内进行人员清场。




拟在台阶南北侧各 增设行李传送带解决出行人员携 带大件行李搬运问题。

同时还计划对现有 到达大厅与外界连通口处(通往地面的楼、电梯口) 增加风幕机系统。可以阻止室外空气流入。后续打开排风设备,可以增加空气流通, 改善到达大厅夏季闷热情况。计划在 出租车等候区两侧增设电动感应门,对空调改造,增加栏杆扶手等设施,提升舒适性。
▲ 《铁路杭州站地铁免安检改造方案(意见征求稿)》
对于这份 《铁路杭州站地铁免安检改造方案(意见征求稿)》,公众可以通过以下途径或方式提出意见:
一、信函邮寄至: 浙江省杭州市上城区笕桥街道环站北路999号东站枢纽管委会1104办公室杨女士收,并在信封上注明 “铁路杭州站地铁免安检改造公开征集意见”字样;
二、电子邮件发送至: hzdzgwh@126.com,邮件主题请注明 “铁路杭州站地铁免安检改造公开征集意见”字样;
本意见征求稿从 2024年11月6日至2024年11月13日公开向社会征求意见。
杭州台记者傅抿铭报道
值班编辑:王恬甜 一审:赵婧
二审:余婕 终审:沈利
4小时前
50秒前